Imagine you’re at home, and a fire breaks out. Do you know what to do? Having a fire escape plan is crucial for your safety. It’s easy to create one with a free printable fire escape plan template.
With a fire escape plan template, you can map out the best routes to exit your home in case of a fire. It’s a simple yet effective way to ensure everyone in your household knows what to do in an emergency.
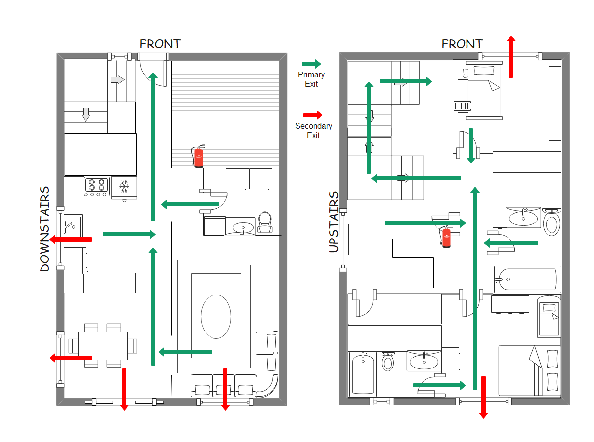
free printable fire escape plan template
Free Printable Fire Escape Plan Template: How to Use It
To use a free printable fire escape plan template, start by drawing a floor plan of your home. Mark all possible exits, including doors and windows. Then, designate a meeting point outside where everyone can gather safely.
Next, discuss the fire escape plan with your family members or roommates. Make sure everyone understands the routes and meeting point. Practice the plan regularly, so it becomes second nature in case of a real emergency.
Remember to update your fire escape plan template as needed, especially if there are any changes to your home layout. It’s important to keep it current and accessible to everyone in your household.
By using a free printable fire escape plan template, you can be better prepared for a fire emergency. Stay safe and take the time to create and practice your escape plan today.
Home Fire Escape Plan Grid Sparky School House
Free Editable Fire Escape Plan Examples Templates EdrawMax
Fire Escape Plan Templates EdrawMax Free Editable
Get This Free Printable Fire Escape Plan To Keep Your Family Safe
Emergency Evacuation Plan Template MyDraw





